fontanarchitettura
About
Works
Drone footage
CONTACT
fontanarchitettura
About
Works
Drone footage
CONTACT
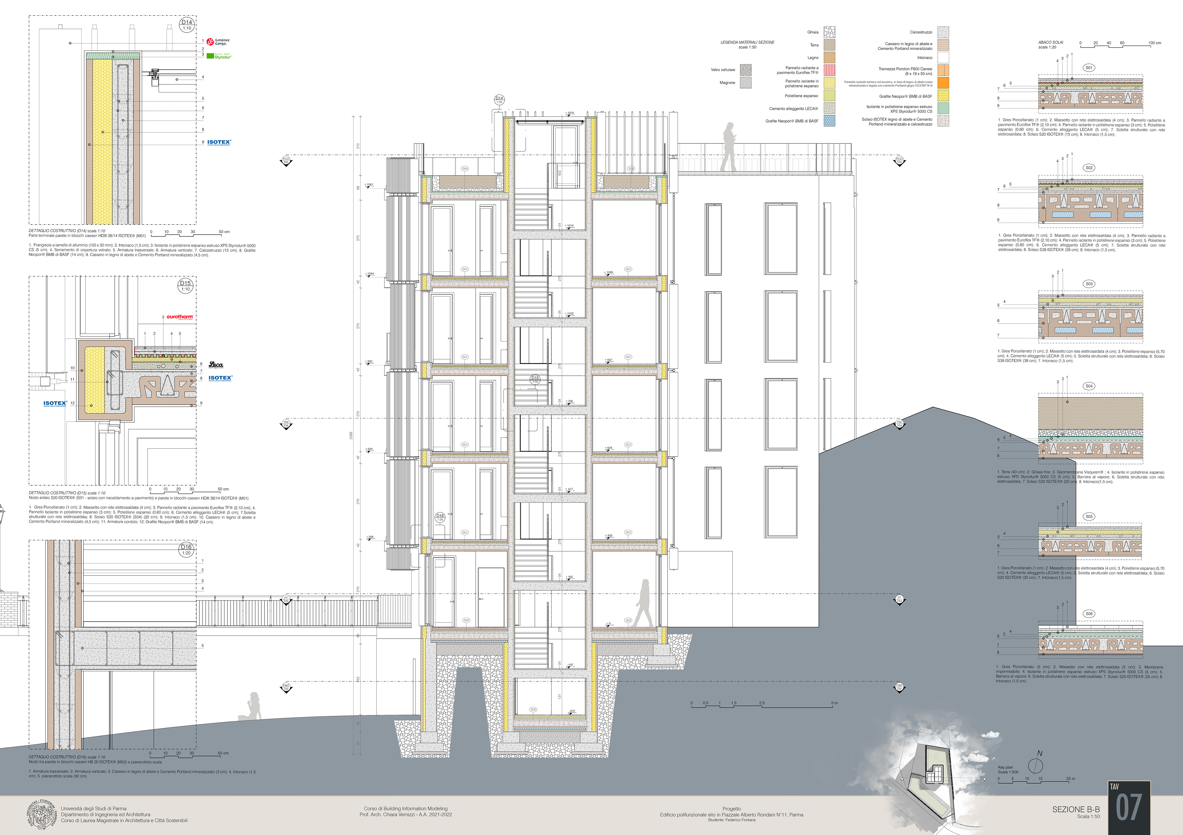
PBO - Polyfunctional Building Oltretorrente
Progetto accademico Building Information Modeling A.A 2021/2022
You may also like
VISUAL - Residential complex in Correggio
2025
COMPETITION - Rifugio Spruggio GIovanni Tonini
2025
curriculum vitae + portfolio
2025
VISUAL - Revitalization of the Borgo di Ognina, Catania
2025
Terrazze Verdi - Residential complex
2025
fontanarchitettura
2025
Meanwhile Explorations | Cineca HQ
2025
VISUAL - Residential complex in Novellara (RE)
2025
VISUAL - residential complex in Carpi (MO)
2025
↑
Back to Top